ザ・パークハウス大阪梅田タワー 25階部分 [新築/弊社仲介]
煌めく都市と、上質な日常、地上36 階建、超高層免震構造レジデンス
大阪市北区中津1丁目2-5
- 新着物件情報
- 新築マンション
- 媒介
価格17,800万円
- 管理費 : 21,890円 / 月
- 修繕積立金 : 8,910円 / 月
- インターネット使用料: 2,101円/月
- 専有面積 : 63.61㎡
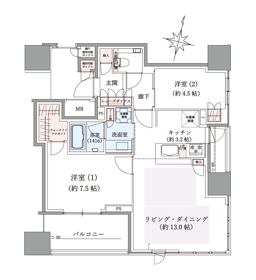
- 間取り : 2LDK
- 南東角住戸
- 8駅10路線の快適アクセス
- 24時間ゴミ出し可
- LDK床全面タイル張り
Overview物件概要
| 専有面積 | 63.61㎡(壁芯) |
|---|---|
| バルコニー | 7.40㎡ |
| 建築構造 | 鉄筋コンクリート造 一部鉄骨造地上36階建 |
| 所在階 | 25階 |
| 方角 | 南東角住戸 |
| 間取り | 2LDK |
| 間取り内訳 | LDK 16.2帖/ 洋室7.5帖・4.5帖 |
| 築年月 | 2025年9月 |
| ペット飼育 | 可(規約による制限有) |
| 管理形態 | 全部委託・通勤管理 |
| 施工会社 | 株式会社熊谷組 |
| 現状 | 空室 |
| 引渡日 | 相談 |
| アクセス | ・阪急各線「大阪梅田」駅 徒歩約6分 ・大阪メトロ御堂筋線「中津」駅 徒歩約2分 |
| SUUMOリンク | SUUMOで見る |
共用施設
| 1階部分 | ・ラウンジ |
|---|---|
| 24階部分 | ・ビューラウンジ、ゲストルーム、コワーキングルーム |
| 35階部分 | ・スカイテラス |































