神戸市西区井吹台北町1 丁目一戸建て [中古/弊社仲介]
旧パナホーム施工×太陽光発電システム搭載×光触媒タイル外壁『キラテック』採用
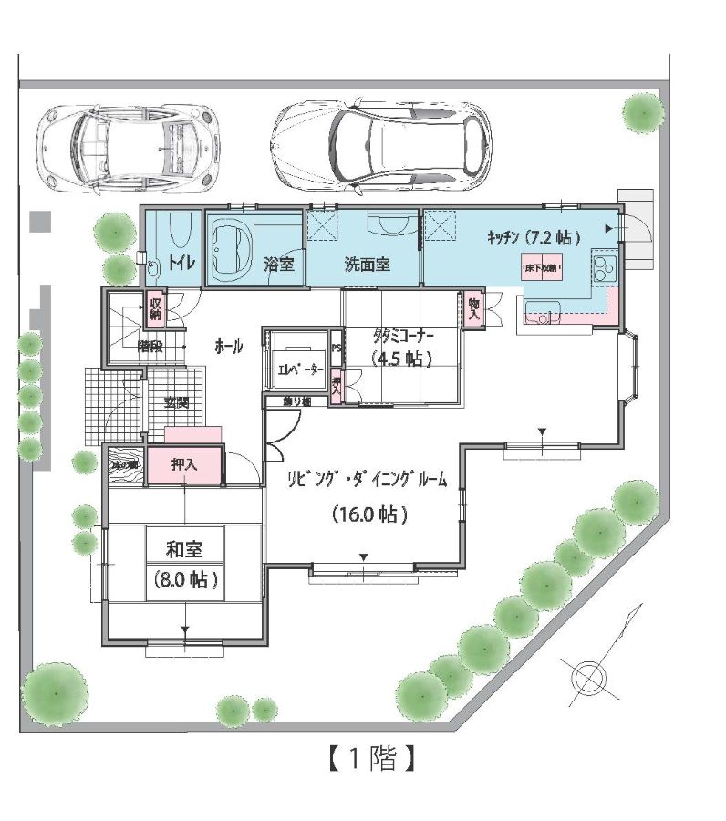
Overview物件概要
| 床面積(公簿) | 1階:92.66㎡ 2階:66.90㎡ |
|---|---|
| 土地面積 | 土地面積:212.72㎡(公簿) |
| 延床面積 | 延床面積:159.56㎡(公簿) |
| 建築構造 | 軽量鉄骨スレート葺き2 階建 |
| 土地権利 | 所有権 |
| 用途地 | 第1種低層住居専用地域 |
| 間取り | 6LDK+ロフト |
| 間取内訳 | LDK約23.2畳 /洋室約7.7帖・約6帖・約6帖 ・約6帖 /洋室約8帖 /タタミコーナー約4.5帖 |
| 築年月 | 2003年11月 |
| 建蔽率 | 50% |
| 容積率 | 80% |
| 接道状況 | 北東側( 幅員約10m)、南東側(幅員約18m)、南西側(幅員約4m) |
| 施工会社 | パナホーム株式会社 |
| 現状 | 空室 |
| 引渡日 | 相談 |
| アクセス | ・神戸市営地下鉄『西神南』駅徒歩約15分 |
| SUUMOリンク | SUUMOで見る |






























